- Accedi per poter commentare
Località
Indirizzo
Vico Libertà
Stato
Superficie
224mq
Bagni
1
Posto Auto
SI
Classe energetica
G
Spazi esterni
Cortile
Prezzo
€60.000,00
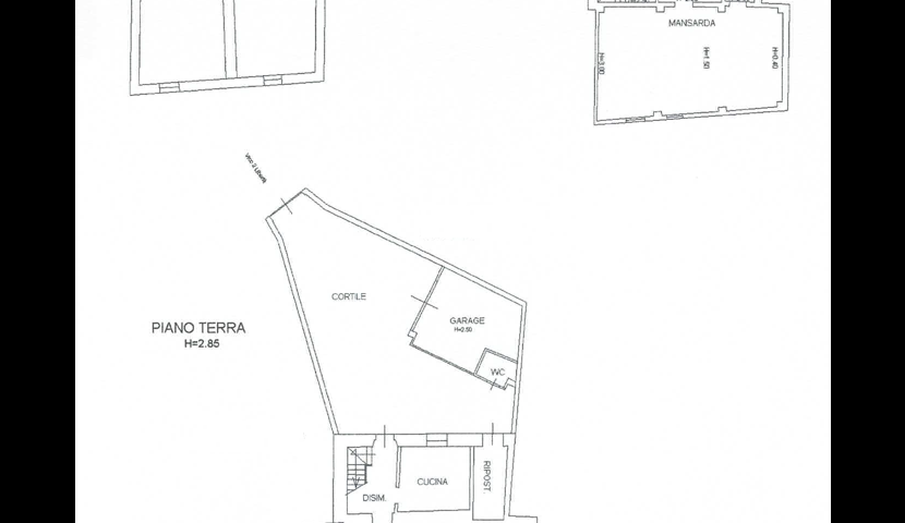
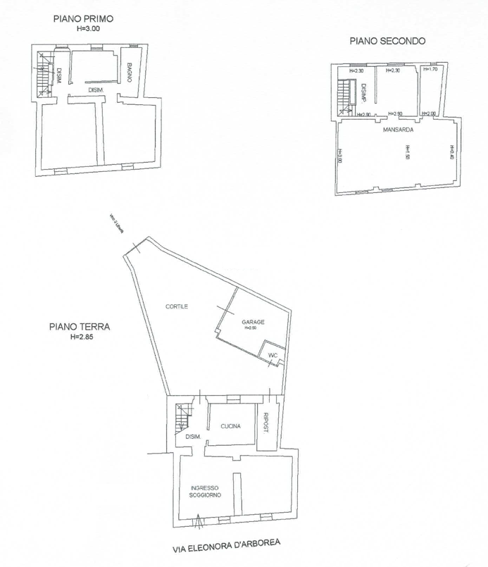
Costa Verde Immobiliare propone in vendita nel centro abitato di Arbus Casa composta al piano terra da ingresso, soggiorno, cucina, disimpegno, garage, WC, ripostiglio e cortile, al piano primo da tre camere, disimpegno e bagno e al piano secondo la mansarda
Rate
Per informazioni contattateci al +39 393 2696904 o venite a trovarci ad Arbus nell'ufficio in Via Libertà 74.
Mappa

