- Accedi per poter commentare
Località
Indirizzo
Via Cavour
Stato
Superficie
150mq
Bagni
1
Posto Auto
NO
Classe energetica
G
Spazi esterni
Cortile
Prezzo
€40.000,00
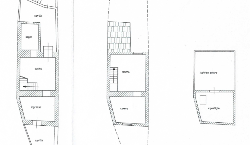
Costa Verde Immobiliare propone in vendita nel centro abitato di Arbus Casa composta da ingresso, cucina, bagno, due camere, ripostiglio, cortile fronte e retro. Adiacente al fabbricato troviamo un'unità collabente che offre la possibilità di ampliare gli spazi interni o realizzare un cortile più ampio con posto auto.
Rate
Per informazioni contattateci al +39 393 2696904 o venite a trovarci ad Arbus nell'ufficio in Via Libertà 74.
Mappa

